Belluno Immobiliare - 0437 941234

Cerca il tuo immobile


mila €  mila €

0 proprieta' trovate

Ponte Nelle Alpi - Appartamento

Rif : 804-13

Indirizzo :

RIONE SANTA CATERINA
Ponte Nelle Alpi

Conforts :

  • TerrazzoAbitabile
  • Soggiorno
  • postoauto
  • Soffitta
  • cucina

Informazioni finanziarie :

Prezzo 111 000

Dettagli :

Condizioni della proprieta' Buono
Numero di stanze 5
Numero di camere da letto 3
Numero di piani 1
Numero di bagni 1
Tipo di riscaldamento nd
Classe F
IPE 280 kWh/m2anno
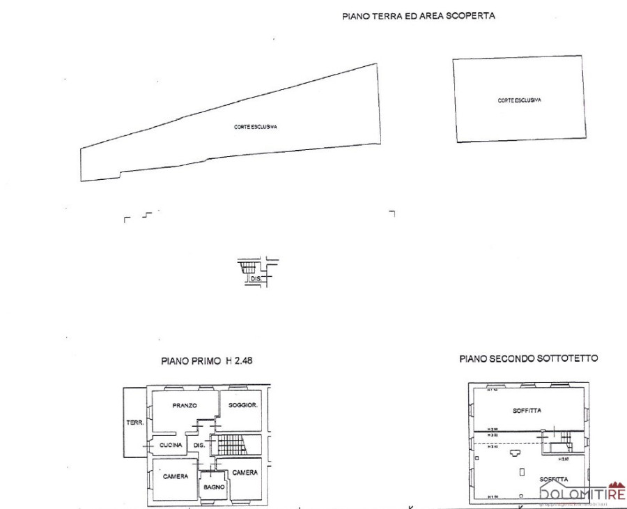
Località Santa Caterina - Appartamento al piano primo, in buone condizioni generali, già abitabile, in quanto oggetto di alcuni interventi di rinnovamento nel corso degli anni, composto da ingresso, cucina e zona pranzo-soggiorno con caminetto, tre camere, bagno con vasca e doccia, ampio terrazzo. Dispone di portoncino blindato e di infissi recenti con vetrocamera. Della proprietà fanno parte una spaziosa soffitta, della superficie dell'appartamento, facilmente raggiungibile da una scala esclusiva e due comodi posti auto scoperti esclusivi. No spese condominiali

Geolocalizzazione :

Richiesta contatto

Nome(*)
Please let us know your name.
Email(*)
Please let us know your email address.
Telefono(*)
Invalid Input
Messaggio
Please let us know your message.
Privacy(*)
Invalid Input
(*)

Invalid Input

Torna alla lista