Belluno Immobiliare - 0437 941234

Cerca il tuo immobile


mila €  mila €

0 proprieta' trovate

Ponte Nelle Alpi - Schiera Bifamiliare

Rif : 806-13

Indirizzo :

Frazione Cugnan
Ponte Nelle Alpi

Conforts :

  • TerrazzoAbitabile
  • Soggiorno
  • cantina
  • garage
  • cucina
  • SalaPranzo

Informazioni finanziarie :

Prezzo 198 000

Dettagli :

Condizioni della proprieta' Buono
Numero di camere da letto 5
Numero di piani 3
Numero di bagni 3
Tipo di riscaldamento autonomo
Classe G
IPE 299.48 kWh/m2anno
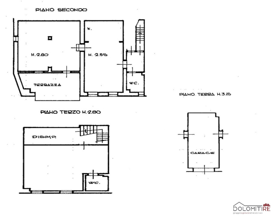
Vendesi in località Col di Cugnan, a Ponte nelle Alpi, palazzina da terra a cielo, che si sviluppa su quattro piani con scala interna di collegamento, costituita da due appartamenti di generose dimensioni, con due cantine ed un ampio garage al piano terra. L'appartamento al piano primo è composto da ingresso, cucina, soggiorno-pranzo, due camere, bagno, oltre al terrazzo. L'altro appartamento, che occupa i piani secondo e terzo, è composto da ingresso, cucina, un grande locale, bagno e terrazzo spazioso e vivibile, al piano primo e da un altro ampio locale/camera, con ulteriore bagno, al piano secondo. Le condizioni generali sono buone e l'immobile è subito abitabile. Infissi in alluminio con vetrocamera. E' possibile parcheggiare all'esterno, su una corte comune. Le due unità che compongono il fabbricato sono acquistabile anche separatamente CLASSE ENERGETICA: - PIANO 1 "G" - EP gl.nren 380,86 kwh/m2 anno - 1,21 EPgl ren kwh/m2 anno - PIANO 2-3 "G" - EP gl.nren 299,48 kwh/m2 anno - 0,96 EPgl ren kwh/m2 anno

Geolocalizzazione :

Richiesta contatto

Nome(*)
Please let us know your name.
Email(*)
Please let us know your email address.
Telefono(*)
Invalid Input
Messaggio
Please let us know your message.
Privacy(*)
Invalid Input
(*)

Invalid Input

Torna alla lista